Abmessungen:Lichte Innenhöhe: 2540mmL/B/H: 2989mm/2435mm/2800mmGewicht montiert: ca. 1.350 kgStaplertaschenabstand: 2050mm (Standard)Ausstattung:1 Stahltür(en) 875x2125mm -außen aufgehend, 1 PVC-Bürofenster mit Dreh-/Kippbeschlag inkl. PVC- Rollladen, 1 Doppellichtbalken 2x36W, inkl. Beheizung mittels 1 E-Konvektor(en) Stiebel Eltron 2kW, Doppelsteckdosen, Beleuchtung und Schalter, PVC-Bodenbelag grau mit SockelleisteFarbe: Enzianblau, RAL 5010Andere Farben möglich. Fragen Sie uns. Wir haben ständige andere Farben im Vorlauf.Innendekor: weiß (10mm Spanplatte beschichtet)Elektrik: VDE (400V/32A/5-polig) - Deutsche NormIsolierung: Boden/Wand/Dach (Mineralwollisolierung: 100/60/100 mm)Varianten:Preisneutrale Ausführung möglich mit Fenster auf der Kopfseite oder wahlweise in der Seitenwand. Siehe Grundrissbeispiele. Nach der Bestellung erhalten Sie von uns einen Grundriss, den Sie mit der gewünschten Ausführung bestätigen können.
Abmessungen:Lichte Innenhöhe: 2540mmL/B/H: 4885mm/2435mm/2800mmGewicht montiert: ca. 1.750 kgStaplertaschenabstand: 2050mm (Standard)Ausstattung:1 Stahltür 875x2125mm -außen aufgehend, 2PVC-Bürofenster mit Dreh-/Kippbeschlag inkl. PVC- Rollladen, 2 Doppellichtbalken 2x36W, 1 E-Konvektor(en) Stiebel Eltron 2kW, Doppelsteckdosen, Beleuchtung und Schalter, PVC-Bodenbelag grau mit Sesselleisten, Staplertaschenabstand: 2055mm (Standard)Farbe: Enzianblau, RAL 5010Andere Farben ebenfalls lieferbar. Fragen Sie uns. Wir haben ständig andere Farben im Vorlauf.Innendekor: weiß (10mm Spanplatte beschichtet)Elektrik: VDE (400V/32A/5-polig) - Deutsche NormIsolierung: Boden/Wand/Dach (Mineralwollisolierung: 100/60/100 mm)Varianten:Preisneutrale Ausführung möglich mit Fenstern auf der Kopfseite oder wahlweise in der Seitenwand. Siehe Grundrissbeispiele. Nach der Bestellung erhalten Sie von uns einen Grundriss, den Sie mit der gewünschten Ausführung bestätigen können.
Abmessungen:
Lichte Innenhöhe: 2540mm
L/B/H: 6056mm/2435mm/2800mm
Gewicht montiert: ca. 1.990 kg
Staplertaschenabstand: 2055mm (Standard)
Ausstattung:
1 Stahltür(en) 875x2125mm -außen aufgehend, 2 PVC-Bürofenster mit Dreh-/Kippbeschlag inkl. PVC- Rollladen, 2 Doppellichtbalken 2x36W, inkl. Beheizung mittels 1 E-Konvektor(en) Stiebel Eltron 2kW, Doppelsteckdosen, Beleuchtung und Schalter, PVC-Bodenbelag grau mit Sockelleiste, 1x 40mm KabeldurchführungFarbe: Enzian blau, RAL 5010 Andere Farben ebenfalls lieferbar. Fragen Sie uns. Wir haben ständig Farbvarianten im Vorlauf.Innendekor: weiß (10mm Spanplatte beschichtet)Elektrik: VDE (400V/32A/5-polig) - Deutsche NormIsolierung: Boden/Wand/Dach (Mineralwollisolierung: 100/60/100 mm)
Varianten:
Preisneutrale Ausführung möglich mit Fenstern auf der Kopfseite oder wahlweise in der Seitenwand. Siehe Grundrissbeispiele. Nach der Bestellung erhalten Sie von uns einen Grundriss, den Sie mit der gewünschten Ausführung bestätigen können.
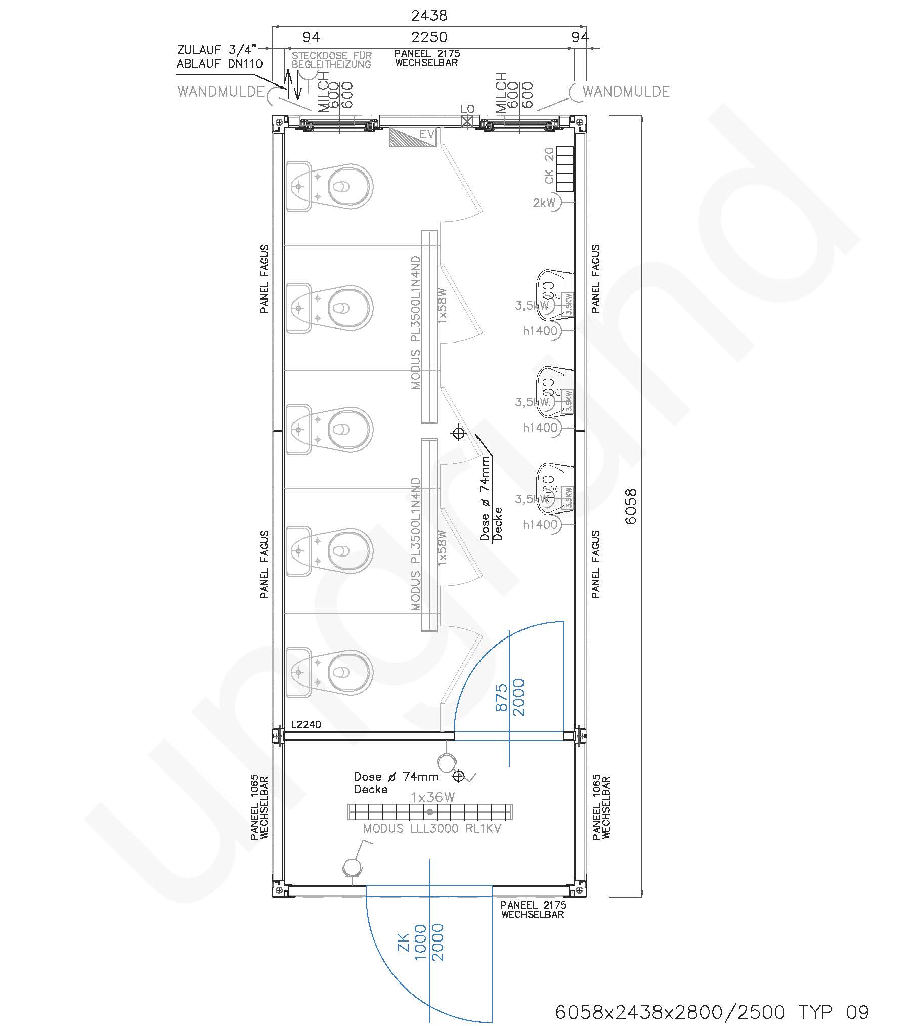
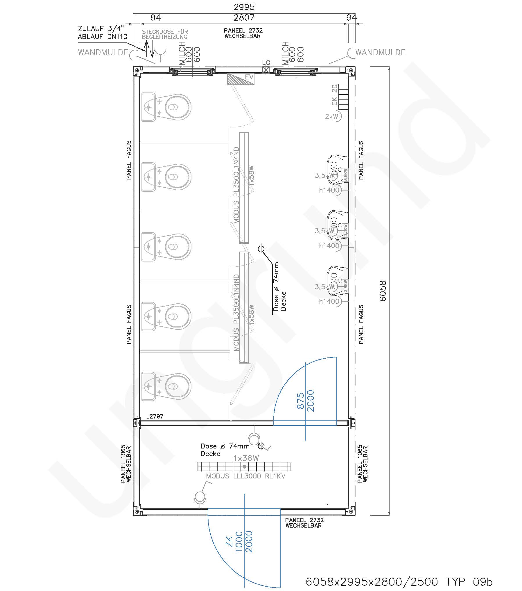
Herren Sanitärcontainer mit abgetrennten Duschraum
Rauminnenhöhe: 2540mm Aussenhöhe: 2800mmLackierung: RAL5010 EnzianblauInnendekor: 9010 Reinweiß (Stahlblech beschichtet)Elektrik: VDE (400V/32A/5-polig) - Deutsche Norm * CEE-Außensteckdosen im Dachrahmen versenkt, Pos. gemäß SkizzeIsolierung:Paneele: 60 mm PU-Schäumung (Polyurethan)Boden/Dach:100/100 mm MineralwolleAusstattung:1 Stahlaußentür 875 x 2125mm - außen aufgehend inkl. Türstopper3 PVC-Sanitärfenster mit Milchglas, Kippbeschlag2 WC-Kabinen komplett2 Urinalbecken mit Druck-Knopfspüler1 Handwaschbecken (510 mm) mit Spiegel, Handtuchhalter und 5l Untertischspeicher1 GFK-Waschrinne 2400 mm mit 4 Handwaschbecken2 GFK-Duschen mit Vorhang1 Standboiler 300 L Austria Email (Entleerungsventil durch den Boden)2 Lichtbalken 1x36 W2 Heizlüfter 2kW Stiebel Eltron1 Abluftventilator 120 mm, 180 m³/h3 Boden-Gullys1 Druckreduzierventil inkl. Wasserfilter, rückspülbar Zu- und Ablauf im Paneel versenkt, Position und Dimensionen gem. Skizzezementgebundene Bodenspanplatten PVC-Bodenbelag R10 an d. Paneelen hochgezogenStaplertaschenabstand: 2050mm (Standard)
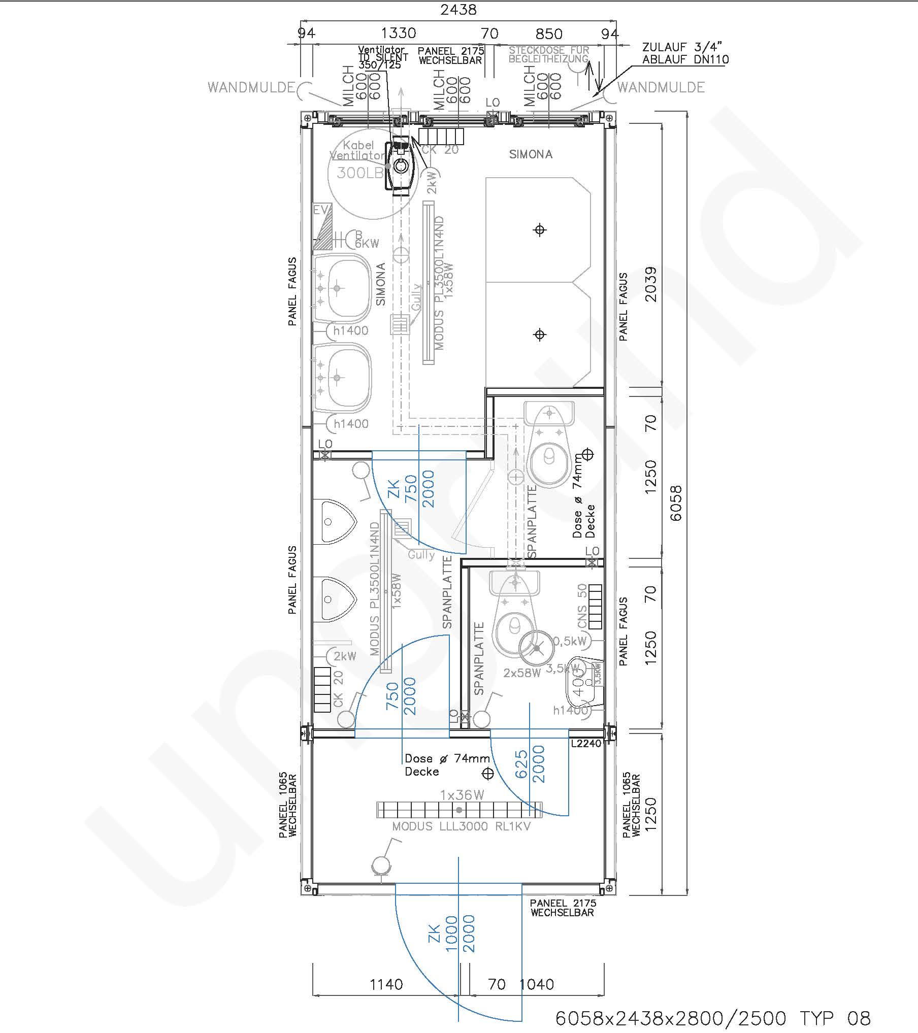
Sanitärcontainer als Duschcontainer
Rauminnenhöhe: 2540mm Aussenhöhe: 2800mmLackierung: RAL5010 EnzianblauInnendekor: 9010 Reinweiß (Stahlblech beschichtet)Elektrik: VDE (400V/32A/5-polig) - Deutsche Norm * CEE-Außensteckdosen im Dachrahmen versenkt, Pos. gemäß SkizzeIsolierung:Paneele: 60 mm PU-Schäumung (Polyurethan)Boden/Dach:100/100 mm MineralwolleAusstattung:1 Stahlaußentür 875 x 2125mm - außen aufgehend inkl. Türstopper2 PVC-Sanitärfenster mit Milchglas, Kippbeschlag2 Kleiderhakenleisten, montiert1 GFK-Waschrinne 2400 mm mit 4 Handwaschbecken6 GFK-Duschen mit Vorhang3 Standboiler 300 L Austria Email (Entleerungsventil durch den Boden)2 Lichtbalken 1x36 W1 Heizlüfter 2kW Stiebel Eltron2 Abluftventilator 120 mm, 180 m³/h2 Boden-Gullys1 Druckreduzierventil inkl. Wasserfilter, rückspülbar Zu- und Ablauf im Paneel versenkt, Position und Dimensionen gem. Skizzezementgebundene Bodenspanplatten PVC-Bodenbelag R10 an d. Paneelen hochgezogenStaplertaschenabstand: 2050mm (Standard)
Typ 01 BürocontainerMaße:Außenmaße: L 6.058 mm B 2.438 mm H 2.800 mmInnenmaße: L 5.866 mm B 2.246 mm H 2.500 mmGewicht: ca. 2.600 kgKonstruktion:Stahlkonstruktion aus Hohl-, Kant- und Walzprofilen8 verstärkte Rahmen-Ecken, begehbares, belüftetes Dach, Wasserführung über stirnseitig integrierte Regenrinnen mit 2 Fallrohren DN 40 / 50 pro Stirnseite, innenliegend, isoliert3-geschossig, stapelbar, mit prüffahiger StatikDie Fertigungsbetriebe sind zugelassene, schweißtechnische Betriebe nach DIN 18 800-7, DIN EN 1090 bis Ausführungsklasse 2 (EXC2) Korrosionsschutz:Die gesamte Stahlkonstruktion ist mit aktivem Korrosionsschutz lackiert.Außenfarbe: Zweikomponentenlack RAL 7035 hellgrau /andere Farben möglichBoden:Bodenquerträger mit eingelegtem Blindboden aus 0,63 mm verzinktem Profilblech, Isolierung: 100 mm Mineralwolle nach DIN 4108 (Baustoffklasse A2 nach DIN 4102, nicht brennbar)19 mm Spanplatte, V 100, E 1, auf Profilstahlträgern befestigt.Die zulässigen Nutzlasten Erdgeschoss 3 KN/m² bzw. 2 KN/m² in den Obergeschossen. 1,5 mm PVC-Bodenbelag, beige marmoriert, in Bahnen verlegt, vollflächig verklebt, Nähte verschweißt U = 0,35 W/m²KAußenwände:0,55 mm verzinktes, bandbeschichtetes Profilblech, Sickentiefe 10 mm, 70 mm verzinkte Profilstahl-Konstruktion, Isolierung: 80 mm Mineralwolle nach DIN 4108 (Baustoffklasse A2 nach DIN 4102, nicht brennbar). 10 mm Spanplatte, beidseitig kunststoffbeschichtet, weiß U = 0,45 W/m²K (auswechselbare Außenwände mit Elektroinstallation)Windfang:10 mm Spanplatte, beidseitig kunststoffbeschichtet, weiß, 50 mm Profilstahl-Konstruktion10 mm Spanplatte, beidseitig kunststoffbeschichtet, weiß (herausnehmbar mit Elektroinstallation)Dach: 0,75 mm verzinktes Profilblech, Sickentiefe 40 mm, Profilstahlträger Isolierung: 80 mm Mineralwolle nach DIN 4108 (Baustoffklasse A2 nach DIN 4102, nicht brennbar) Dampfsperre10 mm Spanplatte, beidseitig kunststoffbeschichtet U = 0,44 W/m²KFenster:Kunststoff-Fenster weiß, B 2.060 mm x H 1.200 mm, 3-teilig, links und rechts feststehendes Teil, mittleres Teil mit Drehkippflügel DIN rechts Isolierverglasung 4/16/4, Kunststoff-Rollladen und Fensterbank, weißAußentür:ZK-Tür B 875 mm x H 2.000 mm, Drückergarnitur und ProfilzylinderschlossInnentür:ZK-Tür B 875 mm x H 2.000 mm, Drückergarnitur und ProfilzylinderschlossElektroinstallation:Nach VDE 0100, komplett mit Anschlusskasten, Verteilungstafel mit FI-Schalter 0,03 A und Sicherungsautomaten, 2 Langfeldleuchten (58 W) mit Wanne, 1 Langfeldleuchte (36 W) mit Wanne, 3 Steckdosen, 1 Steckdose für Heizkörper, 2 SchalterHeizung:Elektro-Konvektor 2,5 kW mit ThermostatFundament:Bauseitig, Punkt- oder Streifenfundament laut FundamentplanAufstellung:Die Aufstellung kann einzeln oder kombiniert erfolgen, Großräume sind ebenfalls durch die auswechselbaren Wände möglich.
Typ 02 BürocontainerMaße:Außenmaße: L 6.058 mm B 2.438 mm H 2.800 mmInnenmaße: L 5.866 mm B 2.246 mm H 2.500 mmGewicht: ca. 2.600 kgKonstruktion:Stahlkonstruktion aus Hohl-, Kant- und Walzprofilen8 verstärkte Rahmen-Ecken, begehbares, belüftetes Dach, Wasserführung über stirnseitig integrierte Regenrinnen mit 2 Fallrohren DN 40 / 50 pro Stirnseite, innenliegend, isoliert3-geschossig, stapelbar, mit prüffahiger StatikDie Fertigungsbetriebe sind zugelassene, schweißtechnische Betriebe nach DIN 18 800-7, DIN EN 1090 bis Ausführungsklasse 2 (EXC2) Korrosionsschutz:Die gesamte Stahlkonstruktion ist mit aktivem Korrosionsschutz lackiert.Außenfarbe: Zweikomponentenlack RAL 7035 hellgrau /andere Farben möglichBoden:Bodenquerträger mit eingelegtem Blindboden aus 0,63 mm verzinktem Profilblech, Isolierung: 100 mm Mineralwolle nach DIN 4108 (Baustoffklasse A2 nach DIN 4102, nicht brennbar)19 mm Spanplatte, V 100, E 1, auf Profilstahlträgern befestigt.Die zulässigen Nutzlasten Erdgeschoss 3 KN/m² bzw. 2 KN/m² in den Obergeschossen. 1,5 mm PVC-Bodenbelag, beige marmoriert, in Bahnen verlegt, vollflächig verklebt, Nähte verschweißt U = 0,35 W/m²KAußenwände:0,55 mm verzinktes, bandbeschichtetes Profilblech, Sickentiefe 10 mm, 70 mm verzinkte Profilstahl-Konstruktion, Isolierung: 80 mm Mineralwolle nach DIN 4108 (Baustoffklasse A2 nach DIN 4102, nicht brennbar). 10 mm Spanplatte, beidseitig kunststoffbeschichtet, weiß U = 0,45 W/m²K (auswechselbare Außenwände mit Elektroinstallation)Fenster:Kunststoff-Fenster weiß, B 2.060 mm x H 1.200 mm, 3-teilig, links und rechts feststehendes Teil, mittleres Teil mit Drehkippflügel DIN rechts Isolierverglasung 4/16/4, Kunststoff-Rollladen und Fensterbank, weißAußentür:ZK-Tür B 875 mm x H 2.000 mm, Drückergarnitur und ProfilzylinderschlossElektroinstallation:Nach VDE 0100, komplett mit Anschlusskasten, Verteilungstafel mit FI-Schalter 0,03 A und Sicherungsautomaten, 2 Langfeldleuchten (58 W) mit Wanne, 1 Langfeldleuchte (36 W) mit Wanne, 3 Steckdosen, 1 Steckdose für Heizkörper, 2 SchalterHeizung:Elektro-Konvektor 2,5 kW mit ThermostatFundament:Bauseitig, Punkt- oder Streifenfundament laut FundamentplanAufstellung:Die Aufstellung kann einzeln oder kombiniert erfolgen, Großräume sind ebenfalls durch die auswechselbaren Wände möglich.
Unser kleinster Damen und Herren Sanitärcontainer
Rauminnenhöhe: 2540mm Aussenhöhe: 2800mmLackierung: RAL5010 EnzianblauInnendekor: weiß (10mm Spanplatte beschichtet)Elektrik: VDE (230V/32A/3-polig) - Deutsche Norm * CEE-Außensteckdosen im Dachrahmen versenkt, Pos. gemäß SkizzeIsolierung:Boden/Dach/Wand:100/100/60 mm MineralwolleAusstattung:2 Stahlaußentür(en) 875 x 2125mm - außen aufgehend inkl. Türstopper2 PVC-Sanitärfenster mit Milchglas, Kippbeschlag2 WC-Kabinen komplett1 Urinalbecken mit Druck-Knopfspüler2 Handwaschbecken (510 mm) mit Spiegel, Handtuchhalter und 5l Untertischspeicher2 Lichtbalken 1x36 W2 Heizlüfter 2kW Stiebel Eltron2 Abluftventilatoren 120 mm, 180 m³/h2 Boden-Gullys1 Druckreduzierventil inkl. Wasserfilter, rückspülbar Zu- und Ablauf im Paneel versenkt, Position und Dimensionen gem. Skizzezementgebundene Bodenspanplatten PVC-Bodenbelag R10 an d. Paneelen hochgezogenStaplertaschenabstand: 2050mm (Standard)
10.427,97 €*
Lorem ipsum dolor sit amet, consetetur sadipscing elitr, sed diam nonumy eirmod tempor invidunt ut labore et dolore magna aliquyam erat, sed diam voluptua
Aktiv-Scheibenreiniger SHBREINIG-AKTIV-500ML Reinigungsaktiver Schaum für eine schlierenfreie Reinigung auf Glas und glatten Oberflächen Beim Aufsprühen bildet sich Schaum, der ein Abfließen an senkrechten Flächen verhindert dadurch entfernt es zuverlässig hartnäckige Verschmutzungen Materialschonende Reinigung von lackierten Flächen sowie Gummi- und Kunststoffteilen Kostensparend durch 20-fache Ergiebigkeit Hinweis Nicht auf heiße Oberflächen oder in der prallen Sonne anwenden. Nicht für Polycarbonatglas geeignet. Anwendungsgebiet Löst Insektenreste, Vogelkot und Straßenstaub, Nikotinbeläge, Fettverschmutzungen, Silikonrückstände und Gummiabrieb von Glasscheiben, Autoverglasungen, Spiegeln und Lackoberflächen. AnleitungFür ein optimales Aufschäumen die Dose vor Gebrauch gut schütteln. Technische InformationenInhalt:
500 ml Produktgewicht (per Stück):
544 g Gebinde:
Aerosoldose Chemische Basis:
Wasser und Propanol Geruch/Duft:
Zitrone Farbe:
Farblos pH-Wert:
9,5 Dichte / Bedingung:
0,89 g/cm³ / bei 20°C Lagerfähigkeit ab Herstellung:
36 Monate AOX-frei:
Ja Silikonfrei:
Ja Biologisch abbaubar:
Ja
Nadelholz Brennholz Briketts 12,5 kgideal als Anzündhilfe oder Langbrandfeuer. Sauber verpackt lose im KartonMaterial: Fichte/ TanneWeichholzDurchmesser: ca. 50mmLänge: 25-60 mmAbpackung: 1 Karton 40/30/26 cmGewicht: 12,5 kg (12,3-13 kg)
Frosch & Rorax Rundum-Sorglos-Paket - Für ein strahlend sauberes Zuhause & sanfte PflegeEntdecke die geballte Kraft der Natur mit unserem sorgfältig zusammengestellten Reinigungs- und Pflegebundle von Frosch und Rorax. Dieses Paket vereint umweltfreundliche Sauberkeit mit hautschonender Pflege - ideal für Haushalte, die Wert auf Nachhaltigkeit, Effizienz und Wohlfühlduft legen.Enthalten im Bundle:Frosch Spiritus Glasreiniger 500ml Frosch Citrus Dusche & Badreiniger 500ml Frosch Zitronen WC Reiniger 750ml Frosch Lavendel Urinstein- und Kalk-Entferner 750ml Rorax Rohrfrei Powergranulat 600gOase Zitronengrasfrische von Frosch Senses Granatapfel Sensitiv-Dusche Nachfüllbeutel von Frosch Frosch Reine Pflege Sommer-Edition Sensitiv-Seife Pfirsichblüte 300ml Kinder Sensitiv-Seife von Frosch Vorteile auf einen Blick:Umweltfreundlich & VeganHautverträgliche PflegeprodukteFrische Düfte für Bad und HaushaltIdeal für FamilienhaushaltePraktisch als Vorrats- oder GeschenkpaketHol dir die grüne Power ins Haus - für ein natürlich sauberes Zuhause mit gutem Gewissen!
Dieses Bundle enthält ausschließlich Frosch & Rorax Produkte, andere Objekte dienen nur zu Deko-zwecken!
Frosch Reinigungs Bundle - Nachhaltige Sauberkeit für ZuhauseEntdecken Sie die geballte Reinigungskraft von Frosch mit diesem umfassenden Reinigungs-Bundle - ideal für den umweltbewussten Haushalt! Die Produkte bieten effektive Reinigungslösungen für Küche, Bad, Fenster und Böden - und das ganz ohne aggressive Chemikalien.Im Bundle enthalten:Frosch Essigreiniger, Entkalker 1000mlMultiflächen-Reiniger Orange von FroschEmsal Bodenpflege Voll-GlanzEmsal Stein&Fliesen Bioprotect 1 LiterEmsal Vinyl Bioprotect 1 LiterFrosch Lavendel Hygiene-Reiniger 500mlFrosch Spiritus Glasreiniger 500mlVorteile auf einen BlickUmweltfreundlich & veganOhne MikroplastikHautfreundliche RezepturenAngenehme DüfteBringen Sie natürlichen Glanz in ihr Zuhause - mit dem Frosch Reinigungs-Bundle!
Dieses Bundle enthält ausschließlich Reinigungsprodukte, andere Objekte dienen nur zu Deko-Zwecken!
Leistungsfähiges Gerät zum Bohren, Hammerbohren und Meißeln mit KabelEin kompakter und leistungsfähiger Kombihammer, kompatibel mit SDS-PLUS Einsteckwerkzeugen. Geeignet zum Bohren, Hammerbohren und Meißeln. Motorleistung 780 W, Drehzahl kann zwischen 0 und 1.100 min-1 mittels Schalter eingestellt werden. Einzelschlagstärke: 2,4 J, optimaler Bohrbereich: 8-18 mm in Beton, max. Bohrleistung: 24 mm in Beton.Technische Daten: Leistungsaufnahme;780 WLeerlaufdrehzahl;0 - 1100 min⁻¹(Leerlauf-)Schlagzahl;0 - 4500 min⁻¹Bohrleistung in Holz;32 mmBohrleistung in Beton;24 mmBohrleistung in Stahl;13 mmIdealer Bohrbereich (Beton);4 - 16 mmEinzelschlagstärke;2,4 JBohrleistung Bohrkrone;54 mmPassend für SDS-PLUS;1Länge des Netzkabels;4,0 mSchallleistungspegel (LWA);100 dB(A)Schalldruckpegel (LpA);92 dB(A)K-Wert Geräusch;3 dB(A)Vibrationswerte, Meisseln;14,3 m/s²Gewicht ohne Kabel;2,6 kgProduktabmessung (L x B x H);370 x 84 x 214 mmMax. Ausgangsleistung;550 WVibrationswerte, Bohren in Metall;4,5 m/s²Vibrationsunsicherheitsfaktor (K-Wert), Bohren in Metall;1,5 m/s²Vibrationswerte, Hammerbohren in Beton;15,9 m/s²Vibrationsunsicherheitsfaktor (K-Wert), Hammerbohren in Beton;1,5 m/s²Vibrationsunsicherheitsfaktor (K-Wert), Meisseln;1,5 m/s²
Insektenentferner ECOLINE in der Pumpsprühflasche... reinigt umweltfreundlich auch hartnäckige VerschmutzungenDetailsVerringerung und Vorbeugung von Risiken für Mensch und Umwelt dank Verminderung der Verpackungsabfälle und erhöhter biologischer AbbaubarkeitDie Auszeichnung mit dem Europäischen Ecolabel garantiert höchste Produktqualität und ökologische VerträglichkeitLackschädigende Insektenverschmutzungen werden gründlich rückstandslos entfernt.Materialschonend, Lack, Chrom, Kunststoff, Gummi etc. werden durch die schonende Rezeptur nicht angegriffen.Zur Vorbehandlung bei Waschanlagenreinigungen geeignetTechnische Informationen Inhalt: 500 mlInhaltsgewicht: 491 gChemische Basis: Wasser TensideGeruch/Duft: CharakteristischFarbe: GrünpH-Wert: 8Dichte: 0,982 g/cm³Dichte Bedingung bei 20°CLagerfähigkeit ab Herstellung: 24 MonateAOX-frei: JaSilikonfrei: JaBiologisch abbaubar: JaGebinde: PumpsprayflascheAnwendungsgebietZur Reinigung von (Windschutz-) Scheiben, Kühlergrill, Stoßstangen, Scheinwerfer, Kfz-Kennzeichen etc., die von Insektenschmutz befallen sind.AnleitungKindersicherung entriegeln und die betroffenen Flächen einsprühen. Anschließend ein bis zwei Minuten einwirken lassen. Die angelösten Reste mit einem feuchten Schwamm oder einem Tuch entfernen.HinweisNicht auf erhitzten Lacken oder bei direkter Sonneneinstrahlung verwenden. Produkt nicht antrocknen lassen.
Skeletool® RX... mit 7 ToolsEnthaltene Tools (Bild 2):Spitzzange Normale ZangeHartdrahtschneiderDrahtschneider154CM Messer mit WellenschliffKarabiner/KapselheberGroßer BithalterMerkmale (Bild 3):Bitfach: Bewahre Leatherman-Bits bequem im Griff Deines Multi-Tools auf, um sie während der Arbeit schnell zur Hand zu haben oder sicher zu verstauen.Klingenarretierung: Raste die Messerklinge ein und entriegle, um sie für eine sicherere Arbeitsweise zu schließen.Austauschbarer Befestigungsclip: Befestige mit diesem Clip Dein Multi-Tool an einer Tasche oder Gürtelschlaufe. Nimm den Clip nach Belieben ab. Außenliegende Funktionen: Dieses Multi-Tool verfügt über Tools, die zugänglich bleiben, auch wenn das Tool verriegelt oder geschlossen ist. Mit einer Hand bedienbar: Halte eine Hand frei. Öffne und verwende die Funktionen dieses Tools mit einer Hand. Aluminium-Griffeinsatz: Der Aluminium-Griffeinsatz trägt dazu bei, den Griff stabil zu halten und das Gesamtgewicht zu minimieren.Technische Daten:Gewicht: 141.75 g. Geschlossene Länge: 10.16 cm.Geöffnete Länge: 15.24 cm. Länge der Primärklinge: 6.6 cm. Breite: 3.15 cm. Gesamtdicke: 1.32 cm. Materialien: 154CM-Edelstahl, Carbid, Cerakote® Enthaltene Bits: #1-2 & 3/16" Kreuzschlitz-Schraubendreher, Carbid Glasbrecher und 1/4" SchraubendreherFarbe: RotLieferumfang:Skeletool® RX
18V • 20-60 mm • 3.500 m² • 240 mmDie moderne Akku-Lösung für mühelose Rasenpflege.
Produktbeschreibung:
Mit der Terminplanungsfunktion können Sie die Wochentage und die genaue Uhrzeit einstellen, zu der Ihr Rasen gemäht werden soll. Der Makita Mähroboter verlässt die Ladestation automatisch, mäht den Rasen und kehrt anschließend selbstständig zur Ladestation zurück. Regelmäßiges Mähen bietet erhebliche Vorteile für den Rasen. Der Makita Mähroboter schneidet das Gras in kleine Stücke, die auf dem Rasen verbleiben und als natürlicher Dünger dienen und somit in Nährstoffe für den Boden bringen. Durch den Akku-Betrieb ist der Mähroboter nicht nur leiser, sondern auch umweltfreundlicher als ein benzinbetriebener Rasenmäher. Die Entscheidung für einen akkubetriebenen Mähroboter führt zudem zu jährlichen Einsparungen der Betriebskosten. Der Gartenabfall wird reduziert und verbessert so das Mikroleben im Rasen. Der Makita Mähroboter eignet sich für bis zu 3.500 m² große Rasenflächen und Steigungen bis zu 26°. Mit einer Schnittbreite von 240 mm erreicht der Mähroboter immer ein gleichmäßig gepflegtes Ergebnis. Dank automatischer Schnitthöhenverstellung kann sowohl die Start- als auch Zielhöhe des Rasens eingestellt werden. Die Schnitthöhe lässt sich von 20-60 mm in präzisen 5 mm Schritten einstellen. So erreichen Sie mühelos die ideale Graslänge und müssen sie lediglich einmal einstellen.
Schnelle Ladezeit
Mäht durch hohe Fahrleistung auch auf Rasenflächen mit Steigungen bis 26°
Einfache Reinigung dank abnehmbarer Abdeckung
Besonders niedriger Geräuschpegel, ideal geeignet für den Einsatz in Wohngebieten
Schnelle LadezeitMäht durch hohe Fahrleistung auch auf Rasenflächen mit Steigungen bis 26°Einfache Reinigung dank abnehmbarer AbdeckungBesonders niedriger Geräuschpegel, ideal geeignet für den Einsatz in Wohngebieten
Technische Daten: Akkuspannung;18 VAkkutyp;Li-ionSchnittbreite;24 cmSchnitthöhenverstellung zentral;20 - 60 mmSchnitthöhenverstellung;9Leerlaufdrehzahl;2300 min⁻¹Ladezeit;40 minGeschwindigkeit vorwärts;1,7 km/hMax. Steigwinkel;26 ºLaufzeit;135 minBürstenloser Motor;1Schallleistungspegel (LWA);59 dB(A)Schalldruckpegel (LpA);70 dB(A)K-Wert Geräusch;3,1 dB(A)Produktabmessung (L x B x H);700 x 560 x 270 mmVerpackungsmaße (L x B x H);988 x 798 x 322 mmProduktgewicht;13,7 kg
Neutralreiniger Frosch (1Liter) 10er Bundle (Vorratspack) - 20 % Sparen
…schonende Reinigung von Böden, Holz-, Küchen-, Badmöbeln sowie Kacheln und Sanitäreinrichtungen. Die milde, ph-hautneutrale Rezeptur ist sanft zur Haut und zu Materialien. Auch ideal für die kleine Textilwäsche mit der Hand.Enthalten im Bundle:10x Neutralreiniger Frosch (1Liter)Produktvorteile:Marke: FroschMade in Germanyschonende Reinigung von allen Flächenschont Haut und MaterialienpH-hautneutraldeal auch für die HandwäscheInhalt: 1000 ml Alle Frosch-Produkte nutzen pflanzlich basierte Wirkstoffe, sind frei von Mikroplastik und tierischen Inhaltsstoffen.Anwendung:Dosierung auf 5 l Wasser: leicht verschmutzt: 30 ml (2 Esslöffel), verschmutzt: 60 ml (4 Esslöffel). Bei hartnäckiger Verschmutzung unverdünnt auftragen, einwirken lassen und gut abspülen. Tipp: Mit Beachtung der Dosierhinweise werden Energie- und Wasserverbrauch so gering wie möglich gehalten und die Wasserverschmutzung reduziert.
Dieses Bundle enthält ausschließlich Frosch Reinigungsprodukte, andere Objekte dienen nur zu Deko-Zwecken!
FAHRZEUGPFLEGE EINSTEIGER-SET 5-TEILIG... Fahrzeugreinigungs-Set für die Innen- und AußenanwendungAktiv-Scheibenreiniger für Glas und glatte Oberflächen Innenraumreiniger mit Antistatikzusatz für den kompletten Fahrzeuginnenraum Insektenentferner für die schnelle und zuverlässige Entfernung von Insektenresten auf Glas, Chrom, Lack und KunststoffoberflächenFelgen-Intensivreiniger für alle lackierten und unlackierten Leichtmetall- sowie Stahlfelgen Geruchsentferner neutralisiert unangenehme Gerüche in Textilien
Umfangreiches Werkzeug-Set für Werkstatt, Montage, Baustellenfahrzeuge, Heimwerker uvm.Die Werkzeuge sind aus robustem Chrom-Vanadium-Stahl hergestellt und haben eine lange Standzeit. In dem gut sortierten MAKPAC Gr.1 Systemkoffer werden die Zubehörteile schnell gefunden und sicher verwahrt.Ringmaulschlüssel 10, 12, 13, 14, 17 mm (5 Stück)
Innensechskant-Schlüssel-Set 1.5, 2, 2.5, 3, 4, 5, 6, 8 mm (8 Stück)
Bits 25 mm: (40 Stück)
PH1, PH2, PH3, PZ1, PZ2, PZ3
SL0.5x3.0, SL0.8x4.0, SL0.8x5.0, SL1.2x6.5
H3, H4, H5, H6
T10, T15, T20, T25, T27, T30, T35, T40,
TH10, TH15, TH20, TH25, TH27, TH30, TH35, TH40
Bithalter magnetisch 60 mm (1 Stück)
Schnellwechsel-Bithalter 60 mm (1 Stück)
Adapter 3/8" Innenvierkant auf 1/2" Außenvierkant (1 Stück)
Adapter Adapter 1/4" Innenvierkant auf 1/4" Innensechskant (1 Stück)
Adapter Adapter 1/4" Außensechskant auf 1/4" Außenvierkant (1 Stück)
Stecknüsse 1/4" Vierkant 5, 6, 7, 8, 9, 10, 11, 12, 13 mm (9 Stück)
Stecknüsse 1/2" Vierkant 8, 10, 12, 13, 15, 17, 19 mm (7 Stück)
Zündkerzen-Stecknüsse
1/2" Vierkant 16, 18, 21 mm (3 Stück)
Ratsche 1/2" (1 Stück)
Doppelratsche 1/4" und 3/8" 140 mm (1 Stück)
Ratschenschraubendreher
1/4" Innensechskant 152 mm (1 Stück)
Rollgabelschlüssel 150 mm (1 Stück)
Kombizange 175 mm (1 Stück)
Schraubendreher PZ2, SL1.0x6, PH1, PH2 (4 Stück)
Vergaser-Schraubendreher 115 mm (1 Stück)
129,00 €*
165,41 €*(22.01% gespart)
Diese Website verwendet Cookies, um eine bestmögliche Erfahrung bieten zu können. Mit Klick auf „[Zustimmen / Alles akzeptieren / etc.]“ erteilen Sie Ihre Einwilligung auch in die Weitergabe über Ihr Verhalten in unserem Shop an unseren Partner, die shopware AG (Ebbinghoff 10, 48624 Schöppingen, Deutschland), die diese Daten Ihnen nicht persönlich zuordnen kann, sie aber zu eigenen Zwecken (z.B. Produktverbesserungen, Marktverhaltensanalysen) verarbeiten darf.Mehr Informationen ...