Was kosten Wohnmodule?
Die Kosten für Wohnmodule hängen von der Größe, Ausstattung und dem Verwendungszweck ab. Ein Basismodul beginnt bei etwa 30.000 €, während vollständig ausgestattete Modulhäuser mit Sanitär- und Kücheneinrichtungen bis zu 100.000 € kosten können. Für eine detaillierte Preisauskunft erstellen wir Ihnen gerne ein individuelles Angebot bei ungrund.store.
Ist ein Modulhaus ein Tiny House?
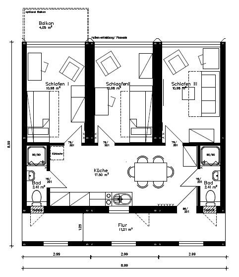
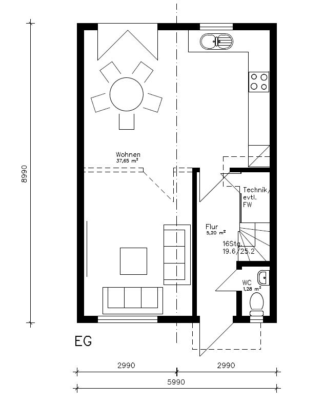
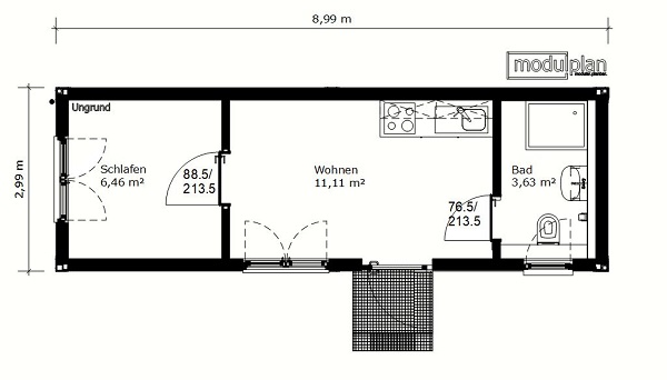
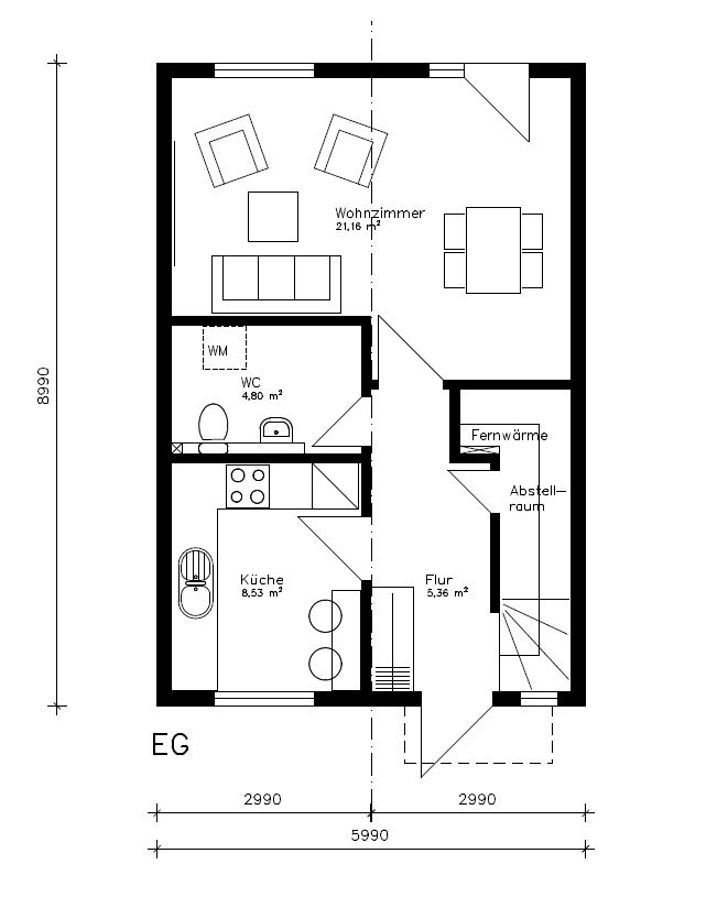
Ein Modulhaus kann ähnliche Eigenschaften wie ein Tiny House haben, ist jedoch nicht auf eine minimale Wohnfläche beschränkt. Modulhäuser bieten die Flexibilität, aus mehreren Modulen größere Wohnflächen zu gestalten, während Tiny Houses meist kompakte, eigenständige Einheiten sind.
Woraus bestehen Modulhäuser?
Modulhäuser bestehen in der Regel aus einer stabilen Stahlrahmenkonstruktion, die mit hochwertigen Materialien wie Holz, Glas und energieeffizienten Dämmstoffen kombiniert wird. Diese Bauweise sorgt für eine langlebige, robuste und nachhaltige Wohnlösung, die den aktuellen Standards der Energieeffizienz entspricht.